当前位置:首页 > 专利资讯 > 正文

【专利】生物质燃料热风干燥炉的电动风控翻板阀(专利号:201921307546.6)

来源:互联网 时间:2020-5-21 15:27 点击:148
专利号:201921307546.6
专利状态:有权
专利类型:[实用新型]
专利申请人:宜昌利农秸秆生物质燃料有限公司
专利分类号:F16K1/20(20060101)
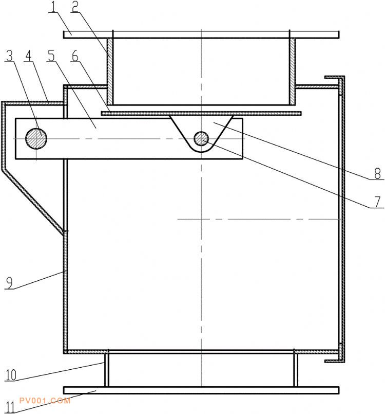
专利摘要:公开(公告)日:2020-05-05摘要:本实用新型提供了生物质燃料热风干燥炉的电动风控翻板阀,它包括阀箱,所述阀箱的两端分别安装有进风管和出风管,所述阀箱的其中一个侧壁上对称固定有轴承座,所述轴承座上支撑安装有转轴,所述转轴上固定有摆杆,在摆杆上通过销轴铰接有用于对进风管进行风量调节的阀板,所述转轴的一端与用于驱动其转动的动力装置相连。此电动风控翻板阀通过电动的方式控制翻板的转动,进而控制热风管道内部的热风流量,最终达到最佳的烘干效果,使得生物质燃料生产过程中,原料能够被控制在最适应的湿度。