当前位置:首页 > 专利资讯 > 正文

【专利】一种液压遥控阀的多点并联控制结构(专利号:201822213765.X)

来源:互联网 时间:2019-12-16 09:33 点击:88
专利号:201822213765.X
专利状态:有权
专利类型:[实用新型]
专利申请人:南通象屿海洋装备有限责任公司
专利分类号:F15B13/02(20060101)
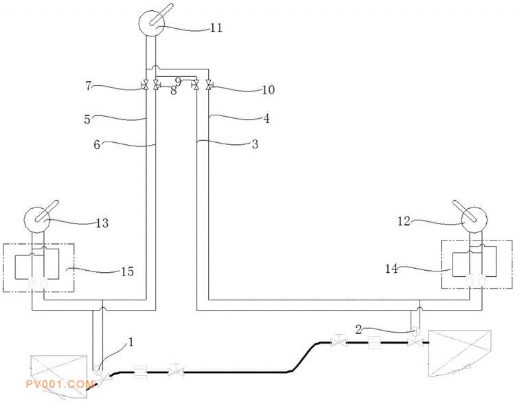
专利摘要:公开(公告)日:2019-11-26摘要:本实用新型涉及一种液压遥控阀的多点并联控制结构,包括低位海水箱就地液压手动泵、高位海水箱就地液压手动泵、远程液压手动泵;远程液压手动泵通过高位管道组与高位海水箱的海水总阀相连通,远程液压手动泵通过低位管道组与低位海水箱的海水总阀相连通;高位海水箱的海水总阀同时与高位海水箱就地液压手动泵连通,低位海水箱的海水总阀同时与低位海水箱就地液压手动泵连通;本实用新型无需在就地液压手动泵处采取任何操作,就可达到开闭海水总管进水阀的功能,在不增加成本的基础上,实现了整套系统的创新。