当前位置:首页 > 专利资讯 > 正文

【专利】一种单泵控双马达机械液压复合传动装置(专利号:202010107708.2)

来源:互联网 时间:2020-6-27 14:34 点击:216
专利号:202010107708.2
专利状态:审中-公开
专利类型:[发明]
专利申请人:江苏大学
专利分类号:F16H47/08(20060101)
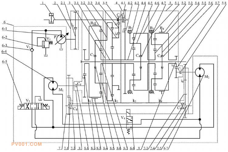
专利摘要:公开(公告)日:2020-06-19摘要:本发明提供了一种单泵控双马达机械液压复合传动装置,包括输入构件、行星齿轮总成、输出构件、液压传动机构、动力输出机构、离合器组件和制动器组件,所述液压传动机构包括两个定量马达,通过控制阀组件控制两个所述定量马达串联或并联;所述离合器组件将所述输入构件分别连接到液压传动机构和行星齿轮总成、将一个定量马达的输出与行星齿轮总成连接、将另一个定量马达的输出与动力输出机构连接、将所述输出构件与行星齿轮总成连接,所述离合器组件和制动器组件提供输入构件与输出构件和/或动力输出机构之间连续的传动比。本发明可以在保证动力输出的基础上,兼具传统机械液压无级变速器的多模式高效无级变速功能。