当前位置:首页 > 专利资讯 > 正文

【专利】一种高温高压锅炉给水泵水压试验的填充式隔板及方法(专利号:201911309124.7)

来源:互联网 时间:2020-4-1 12:33 点击:146
专利号:201911309124.7
专利状态:审中-公开
专利类型:[发明]
专利申请人:沈阳鼓风机集团核电泵业有限公司
专利分类号:F04B51/00(20060101)
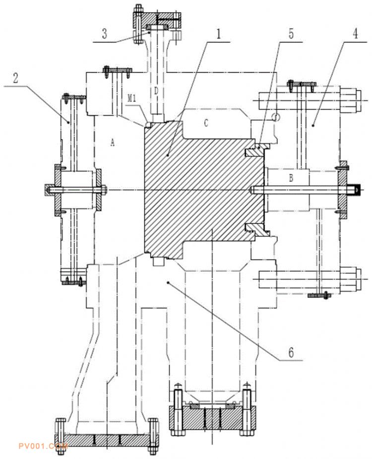
专利摘要:公开(公告)日:2020-03-27摘要:本发明公开了一种高温高压锅炉给水泵水压试验的填充式隔板及方法,通过在给水泵的筒体内安装填充式隔板,分别对给水泵吸入侧泵盖一侧的第一低压腔、吐出侧泵盖一侧的第二低压腔、抽头位置的中压腔、以及筒体内的高压腔进行径向密封并分别对所述第一低压腔、第二低压腔、中压腔、以及高压腔进行水压试验。本发明可以有效的避免传统水压试验所产生的各种问题,提高水压试验的成功率和安全性。