当前位置:首页 > 专利资讯 > 正文

【专利】一种机械操纵式自重落幅多路阀及其控制系统(专利号:201920171001.0)

来源:互联网 时间:2019-12-16 08:43 点击:128
专利号:201920171001.0
专利状态:有权
专利类型:[实用新型]
专利申请人:圣邦集团有限公司
专利分类号:上海圣邦液压有限公司
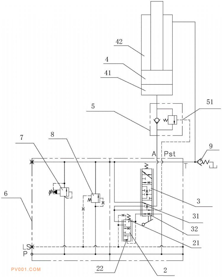
专利摘要:公开(公告)日:2019-11-26摘要:一种机械操纵式自重落幅多路阀及其控制系统。解决了现有的机械操纵式多路阀控制系统中不能实现重力下落,造成能源消耗大的问题。它包括液压缸、平衡阀和多路阀,所述的多路阀包括补偿器、换向阀、主进油口、回油口、工作油口和控制油口,所述的换向阀上设有第一节流槽和第二节流槽,所述的第一节流槽为可变节流槽,第二节流槽为固定通流面积的节流槽,所述的液压缸包括油缸无杆腔和油缸有杆腔,多路阀的工作油口通过平衡阀与油缸无杆腔相连通,多路阀的控制油口与平衡阀控制腔相连通,所述的油缸有杆腔通过背压阀与回油口相连通。本实用新型具有使用流量小、输出压力平稳、能量损耗小、使得重物下落平稳的优点。